
MIL-DTL-24688A
APPENDIX B
B.4 IGNITION SOURCE
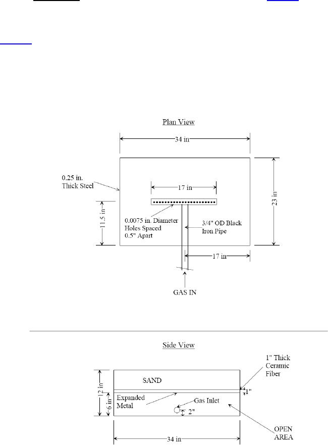
B.4.1 Ignition source. The ignition source shall be a gas fired burner, as shown on figure B-4, with fuel bed
surface dimensions of 23 inches by 34 inches by 12 inches high. The burner shall use C.P. Grade propane as the
fuel. The gas piping will be installed inside the burner box and the box then filled with materials to allow for the
diffusion of the gas. The burner shall be positioned on the floor of the test compartment such that the 23-inch
dimension is 12 inches from the back wall and the 34-inch dimension is 16 inches from the left wall as shown on
figure B-5. The spacings shall be measured from the interior surface of the wall to the edge of the fuel bed of the
burner. The heat release rates for the burner shall be as shown below:
Test Time (Minutes)
Heat Release Rate (kW)
05
100
5 10
150
10 20
200
FIGURE B-4. Ignition burner.
31
For Parts Inquires call Parts Hangar, Inc (727) 493-0744
© Copyright 2015 Integrated Publishing, Inc.
A Service Disabled Veteran Owned Small Business