
MIL-DTL-24688A
APPENDIX A
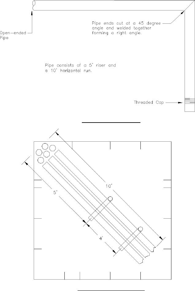
FIGURE A-5. Typical elevation of pipe set-up.
FIGURE A-6. Location of horizontal pipe supports.
24
For Parts Inquires call Parts Hangar, Inc (727) 493-0744
© Copyright 2015 Integrated Publishing, Inc.
A Service Disabled Veteran Owned Small Business