
MIL-DTL-24688A
APPENDIX B
DUCT INSULATION ROOM/CORNER TEST
B.1 SCOPE
B.1.1 Scope. This appendix provides the test procedure for a standard room/corner fire test that can be used to
evaluate ventilation duct insulation materials that are applied to the exterior surfaces of ventilation ducts. This
appendix is a mandatory part of the specification. The information contained herein is intended for compliance.
B.1.2 Applicability. The specific performance characteristics to be evaluated are as follows:
a.
Flame Spread
b.
HRR
c.
Combustion Gas Generation
d.
Smoke Optical Density
B.2 TEST COMPARTMENT
B.2.1 Test compartment. The test compartment shall be located inside a larger burn facility to negate the
effects of environmental conditions such as wind and rain. The facility shall be capable of providing sufficient
combustion air for the test. The fire tests shall be conducted inside a steel compartment that is used to simulate a
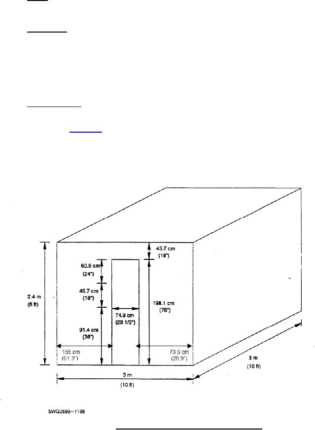
typical shipboard space. Figure B-1 provides an isometric sketch of the compartment. The dimensions of the
compartment shall be 10 feet by 10 feet by 8 feet high with a single vent 2.45 feet by 6.5 feet. Any single dimension
of the compartment shall not vary by more than ±1 inch and any single dimension of the vent shall not vary by more
than ±½ inch. The compartment shall be constructed of ¼-inch thick steel plate. Reinforcing stiffeners may be
used, however they should not interfere with the installation of the test ducts.
FIGURE B-1. Steel compartment for use in duct insulation tests.
28
For Parts Inquires call Parts Hangar, Inc (727) 493-0744
© Copyright 2015 Integrated Publishing, Inc.
A Service Disabled Veteran Owned Small Business