
MIL-DTL-24688A
APPENDIX A
PIPE INSULATION ROOM/CORNER TEST
A.1 SCOPE
A.1.1 Scope. This appendix provides the test procedure for a standard room/corner fire test that can be used to
evaluate pipe insulation materials. This appendix is a mandatory part of the specification. The information
contained herein is intended for compliance.
A.1.2 Applicability. The specific performance characteristics to be evaluated are as follows:
a.
Flame Spread
b.
Heat Release Rate (HRR)
c.
Combustion Gas Generation
d.
Smoke Optical Density
A.2 TEST COMPARTMENT
A.2.1 Test compartment. The test compartment shall be located inside a larger burn facility to negate the
effects of environmental conditions such as wind and rain. The facility shall be capable of providing sufficient
combustion air for the test. The fire tests shall be conducted inside a steel compartment that is used to simulate a
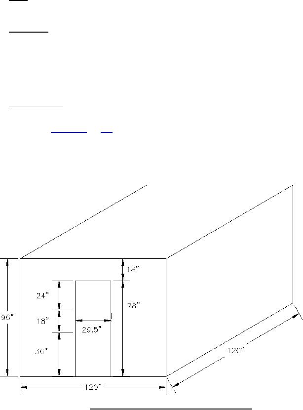
typical shipboard space. Figures A-1 and A-2 provide an isometric sketch and plan drawing of the compartment.
The dimensions of the compartment shall be 10 feet by 10 feet by 8 feet high. Any single dimension of the
compartment shall not vary by more than ±1 inch and any single dimension of the vent shall not vary by more than
±½ inch. The compartment shall be constructed of ¼-inch thick steel plate. Reinforcing stiffeners may be used,
however they should not interfere with the installation of the test pipes.
FIGURE A-1. CBD steel compartment for use in pipe insulation tests.
21
For Parts Inquires call Parts Hangar, Inc (727) 493-0744
© Copyright 2015 Integrated Publishing, Inc.
A Service Disabled Veteran Owned Small Business